EMPRENDIMIENTO EN POZO - SAN RAFAEL, MAR DE AJO

direccion Salta 649, Mar De Ajó

volver Volver al listado
left
right
left
right

Venta

Rebajado

Precio rebajado

USD 98.000

Rebaja 7 %
  • Destacado Destacado
  • Oportunidad
  • Tipo de propiedad Casas
  • ambientes 4 Ambientes
  • toilet 2 baños
  • cama 3 Dormitorios
  • Anticipo y cuotas Anticipo y cuotas
  • Superficie cubierta Sup. cubierta 78m2
  • Superficie total Sup. total 146m2
  • Antiguedad Antigüedad En construcción
  • Estado Estado Excelente

Acerca de la propiedad

EMPRENDIMIENTO EN POZO - Barrio San Rafael, Mar de Ajó

Varela UNO | Construcción

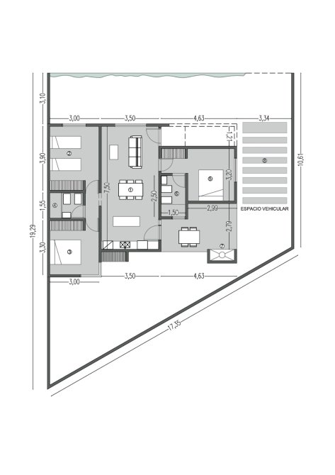
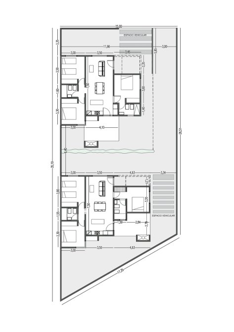
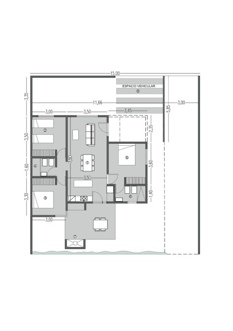
Ubicados en calle Salta 649, Barrio Residencial San Rafael Mar de Ajo, Las viviendas se desarrollan en su totalidad en una sola planta, cuentan con un espacio de cocina - comedor y living integrados, una habitación con baño en suite, un baño compartido y dos espacios de habitaciones donde uno de ellos puede ser adaptable y poder unirlo como parte del living. El conjunto esta pensado como viviendas aisladas , generando privacidad y la posibilidad de ser unidades funcionales tanto para uso temporal o de uso permanente, con patio individuales y sector para vehiculo.

Unidad n° 1: 78.00 m2 CUBIERTOS,  2.20 m2 SEMI-CUBIERTO y 109 m2 DE PATIO + ESPACIO COMÚN - ESPACIO PARA VEHICULO - ESPACIO DE PARRILLA

Unidad n°2:  78.00 m2 CUBIERTOS,  2.00 m2 SEMI-CUBIERTO y 146 m2 DE PATIO + ESPACIO COMÚN - ESPACIO PARA VEHICULO - ESPACIO DE PARRILLA

Descripción material:
Descripción de Materiales:
  • Estructura: Hormigón armado con bases aisladas, encadenados inferiores, columnas, vigas y losas de viguetas pretensadas.
  • Cerramientos: Mampostería de ladrillo 12x18x33 en interior y exterior, revoque grueso con aislante hidrófugo, y Polietileno Negro Nylon como barrera hidrófuga.
  • Aberturas: Aluminio línea Modena color negro con vidrio DVH, premarcos y contramarcos.
  • Techos: Estructura de madera en el living, comedor y cocina con cabios de 2x5’ y madera machimbrada de pino tratado, aislamiento térmico de lana de vidrio y chapa C25 Cinculum.
  • Interiores: Losa de viguetas pretensadas con terminación en placas de yeso para mayor confort acústico.
  • Baños: Revestidos en pisos y paredes hasta el cielorraso de 2.40 m, con artefactos de primera línea (bacha, inodoro, bidet, y ducha).
  • Cocina: Muebles en melamina blanca o gris, bacha, mesada y griferías de primera línea, con revestimiento cerámico de 0.60 cm de altura sobre la mesada.
  • Puertas: Puertas placa de melamina y frentes de placares en melamina blanca o gris.
Instalaciones:
  • Agua: Sistema de agua fría y caliente con caños de PVC termofusión, termotanque eléctrico de 50 litros, y tanque de reserva de PVC de 500 litros.
  • Cloacas: Instalación conectada a la red con caños de polipropileno y aros de goma en las uniones.
  • Electricidad: Cableado según cálculo, tomas preparadas para aire acondicionado en cada espacio, y tableros seccionales.
  • Terminaciones: Pisos interiores revestidos con porcelanato, paredes pintadas con látex interior, techos con cetol, y revestimiento texturado en el exterior.
CONSULTE FINANCIACION


Seguinos en nuestras redes sociales y enterate de todos los nuevos ingresos, nos podés encontrar como @inmob.gabrielgomez

Las fotografías son propiedad de Gabriel Gomez por lo que no pueden ser utilizadas sin autorización expresa (Ley 11.723). La información gráfica y escrita contenida en el presente aviso es meramente a título estimativo y no forma parte de ningún tipo de documentación contractual. Las medidas y superficies definitivas surgirán del título de propiedad del inmueble referido. Asimismo, los importes de impuestos, tasas, servicios y expensas aquí indicados están sujetos a verificación por parte del potencial comprador. El valor del inmueble indicado en el presente puede ser modificado sin previo aviso.

Inmobiliaria Gabriel Gomez
Av. Libertador San Martin 473 - Mar de Ajó
inmobiliariagabrielgomez@gmail.com
Tel: (02257) 548959
Facebook | Instagram
www.inmobiliariagabrielgomez.com

 

Comodidades

  • Patio Con patio
  • Cochera cochera
  • Parrilla Con parrilla
Ver más

Ubicación

Las fotografías son propiedad de Gabriel Gomez por lo que no pueden ser utilizadas sin autorización expresa (Ley 11.723).La información gráfica y escrita contenida en los avisos es meramente a título estimativo y no forma parte de ningún tipo de documentación contractual.

Servicio brindado por

buscadorprop

Todos los derechos registrados:

grupotodo
whatsapp Whatsapp email Contactar telefono Llamar
Chatea con nosotros whatsapp